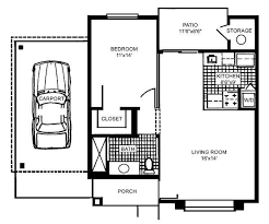
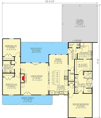
47++ Carport floor plan ideas